- Главная страница
- Инженерный раздел
- Проектирование
- Кабеленесущие системы Oglaend by Hilti
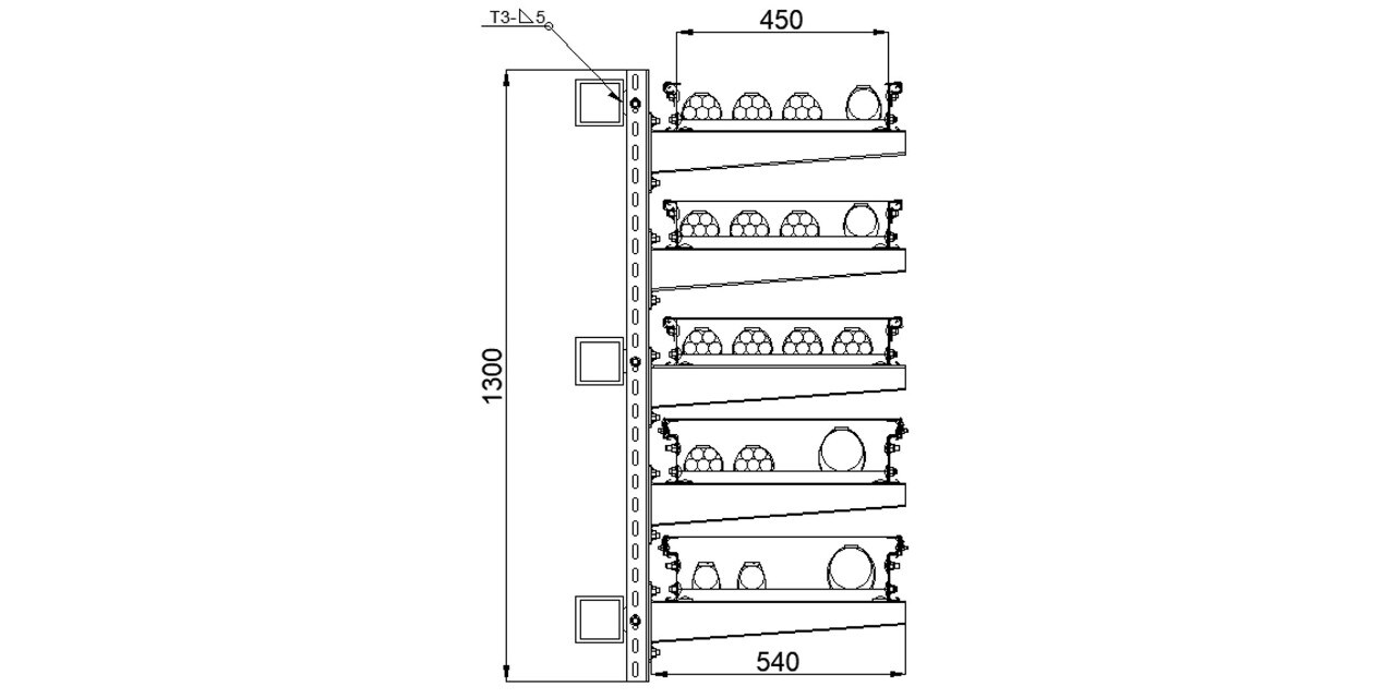
- Трассы сложной геометрии
Трассы сложной геометрии
Идеально подходит для прокладки кабельных трасс внутри производственных или складских помещений
Особенности конструктива внутренних трасс
- Трассы комбинированные – состоят из лотков (зеленые) и лестниц (голубые).
- Обилие поворотов, подъемов и спусков различных углов и радиусов
- Обязательны крышки. По требованиям ПУЭ, в большинстве отделений кабели должны быть проложены в закрытых кабельных коробах. Требование обусловлено необходимостью защиты кабелей от механических повреждений.
- Уменьшители и расширители ширины, разделители и прочие фасонные элементы и аксессуары.
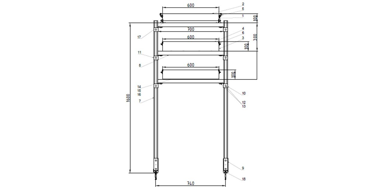
Стандартные решения проектировщиков
На магистральных участках
- Для крепления магистральных кабельных трасс прокладывают вспомогательные металлоконструкции. А уже на них приваривают кабельные стойки
- Традиционно на прямолинейных участках шаг не более 2х метров
На поворотных участках
- Опоры расставляются среднестатистически
- Не учитывается место крепления опоры
- Не учитываются условия монтажа
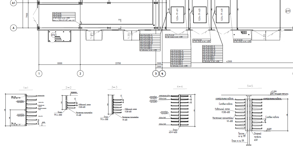
Типовые решения Hilti для магистральных трасс
Преимущества решения Hilti
Детальная проработка магистральных трасс, позволяет подобрать идеально подходящие элементы по нагрузке, что приводит к снижению затрат проекта в целом:
- Оптимально подобранный шаг крепления
- Разнообразие несущих элементов позволяет использовать индивидуальные решения под ваши нагрузки, что приводит к снижению стоимости проекта.
- Оптимально подобранное крепление кабеля внутри лотка
- Идеально подобранный узел крепления кабеленесущей системы к базовому основанию, что приводит к снижению стоимости монтажных работ
- Полное сопровождения процесса проектирования сотрудниками Hilti
- Мы можем подтвердить документами наш БРН или выполнить расчет узла, что позволит вам быть уверенными в надежности нашего решения
Сравнение типового проекта с проектом Hilti
Варианты разработки конструкции:
На основании серии. Типовой проект
- Быстро проектируется
- Много нестыковок
- Отсутствие учета нагрузки кабеля
- Отсутствия полных деталей в проекте по КНС
- Отсутствие индивидуального подхода в проекте по нагрузке. Типовые решения рассчитаны на максимальную нагрузку, встречающуюся в проекте, что ведет к удорожанию стоимости
- Стандартный шаг опорных конструкций - 1 метр
- Большой объем сварочных работ на сооружение основных несущих конструкций (КМ1, КМ2)
- Увеличенные сроки сооружения
- Повышенная стоимость транспортных услуг
- Дополнительные затраты времени на окраску изделий
Проект Хилти. Учитывают детали. Современный подход
- Детальная проработка проекта, учет индивидуальных особенностей, вплоть до заполнения конструкций кабелем
- Наличие технико-экономического обоснования позволяет принять правильное решение
- Техническая и сборочная документация высокого качества
- Разнообразие несущих элементов позволяет использовать индивидуальные решения под ваши нагрузки, без удорожания проекта
- Шаг опор до 6 метров в зависимости от требований промышленной площадки и нагрузок
- Крепление кабелей в соответствии с требованиями на короткое замыкание, хомут-лентами с покрытием
- Полностью болтовая сборка, и комплектная поставка
- Использование услуг Hilti по предварительной сборке узлов позволит вам избежать всех рисков и дополнительных затрат по времени
СРАВНЕНИЕ СТОИМОСТИ РЕШЕНИЙ ПО ТИПОВОМУ УЧАСТКУ
Типовое решение
| Наименование | Стоимость |
|---|---|
| Лоток перфорированный 500х100 L3000 | 58 608,06 |
| Крышка с хахемлением на лоток осн. 500 L3000 | 29 986,53 |
| Лестничный лоток 100х500, L3000 | 267 795,36 |
| Крышка на лоток с заземлением осн. 500 L3000 | 257 870,76 |
| С-образный профиль 41х41, L1800, толщ. 2,5 мм | 59 287,011 |
| Консоль с опорой ML осн. 600 мм | 303 616,005 |
| Гайка для подвешивания профиля (с пружиной) | 11 160,24 |
| Винт с гладкой головкой и квадратным подголовником | 177,653 |
| Держатель крышки, цинк-ламельный | 3 652,72 |
| Универсальная прижимно-направляющая пластина | 5 556,894 |
| ИТОГО | 997 684,23 |
Решение Hilti
| Наименование | Стоимость |
|---|---|
| Профиль-кагал S-M CH60-U-4P3 | 20 520 |
| Старт-кронштейн приварной CH60-3/4 ST-WB-C-5 | 7 138,2 |
| Консоль S-M CA-40-540 HDG | 51 128 |
| Болт стопорный в комплекте S-M LS-NU-M10x25 | 3 039,4 |
| Лестница кабельная OE100-450-3 HDG | 190 903,2 |
| Крышка OE CO-450 HDG | 284 247,6 |
| Соединитель стыковой OE/LOE 100 SC HDG | 12 876,4 |
| Зажим для крышки OE CC HDG | 24 568,8 |
| Зажим крепежный OE-FC-A40x33 10/10 HDG | 12 056 |
| SPB-RF-100-CT-500-3000 PG | 74 907 |
| SPB CO-CT-100-3000-1 PG | 8 397,9 |
| Зажим для крышки SPB-RF-75 CC HDG | 3 263,2 |
| Washers S-M WA-6x25x1.5 PG | 67,4 |
| Болт стопорный S-M LS-M6x16 PG | 285,6 |
| Гайка фланцевая S-M NU-FL-M6 PG | 33 |
| ИТОГО | 693 431,7 |